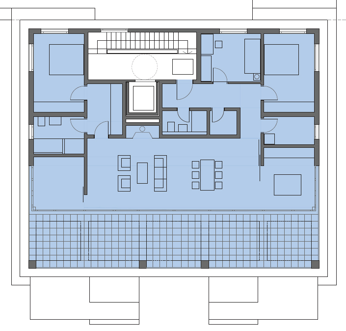
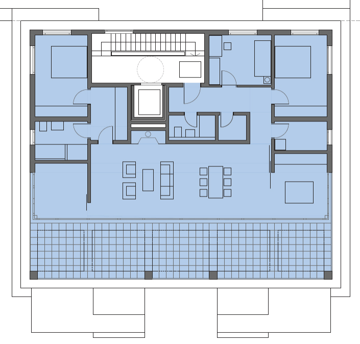
158 qm - 5 Zimmer - Attika Wohnung - 3. OG

Wohnfläche - Wohnung S7

Entrée                                               8.30

Schlafen                                           13.5

Ankleide                                           6.60

Bad                                                   6.20

Wohnen / Küche / Essen              52.60

Abstellraum                                      2.30

Hauswirtschaftsraum                       5.00

Büro                                                   8.30

Kind 1                                                13.5

Kind 2                                                10.0

Dusche / WC                                   3.50

Gang                                                2.20

Dachterrasse (50%)                       25.80

Gesamt (qm)                               157,80